Принцип функционирования и конструктивные особенности
Гидравлическим прессом называют специальное оборудование для домашнего гаража, которое применяется для обработки заготовок или других деталей высоким давлением. Часто его применяют работники автосервиса при починке автомобилей. Прессом могут пользоваться, чтобы из отходов изготовить брикеты или согнуть металлические предметы.
Профессиональный автомобильный пресс стоит недешево, и поэтому некоторые пытаются изготовить его самостоятельно. Однако перед этим лучше ознакомиться с особенностями его конструкции и основными функциональными принципами.
В состав конструкции входят две основные камеры, которые выполнены в виде цилиндров. В меньшей из них происходит увеличение давления за счет перекачивания масла во второй, увеличенный цилиндр. Между цилиндрическими камерами жидкость перекачивается при помощи трубовидного канала, соединяющего камеры. Когда масло попадает во второй цилиндр, возрастает давление на поршень, отвечающий за работу пресса. Также устройство оснащено специальными опорами, в которые помещается обрабатываемое изделие.
Гидравлический пресс из домкрата своими руками
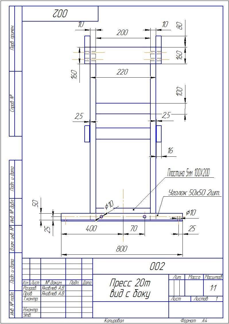
Уважаемые посетители сайта “Самоделкин друг“ сегодня мы с вами рассмотрим один из вариантов создания самодельного гидравлического пресса из домкрата и металлических швеллеров.. Сделать пресс в кустарных условиях вполне возможно, для чего понадобиться автомобильный домкрат который реально приобрести на такой случай, или воспользоваться подерженым, как вы поняли сам домкрат и будет выполнять роль пресса. Так же понадобиться надежная станина сваренная из металлического швеллера “П-10” Толщина металла должна представлять для самодельного пресса запас прочности, во избежание деформации стана. Верхняя перекладина несущая на себе основное напряжение от давления гидравлического домкрата, должна быть хорошо проварена в местах соединения с вертикальными стойками станины, а лучше всего дополнительно наварить распорки из уголка, арматуры или толстой металлической пластины.
Обязательно необходим возвратный механизм, он довольно прост, а именно верхняя балка и подвижная перекладина соединяются между собой пружинами, сила сжатия которых должна возвращать на исходную позицию вес домкрата и швеллера в сумме, для чего можно спаривать пружины.
Крепление домкрата может быть 2х видов: вверх подвижной частью и наоборот вниз. Первый вариант проще, но неравномерно распределяется давление, а в перевернутом виде домкрат будет работать только после доработки, а именно придется слить масло и разобрать корпус, снять стакан. Все дело в том что внутренняя часть домкрата заполнена маслом не до конца, поэтому перевернув его в трубку пойдет воздух. Тоесть чтоб он заработал верх ногами, ему надо нарастить трубку внутри корпуса. Так же можно в нижнюю заливную горловину вставить гибкий шланг и расширительный бочек (см ниже) Все варианты разберем и внимательно рассмотрим. Смотрите так же наш раздел Станки и инструменты.
Имея у себя в гараже собственный самодельный пресс из домкрата, вы значительно облегчите себе жизнь, к примеру если нужно много опрессовать заготовок или элементарно отжать яблоки и виноград, станок очень полезный.
Материалы
- домкрат 10 т
- швеллер П-10
- пружина
- уголок
- металлическая пластина
- обрезок трубы
Инструменты
- сварочный инвертор
- болгарка
- молоток
Чертежи и пошаговый процесс создания пресса из домкрата своими руками.
На данномчертеже показан простейший пример размещения домкрата, но он все же имеет свои слабые стороны и недостатки, далее мы с вами рассмотрим более совершенную модель. И так, первым делом нужно сварить раму станка или как у нас принято говорить “станину” Вот представлен общий вид второго варианта размещения домкрата, здесь он расположен вниз выдвижной частью. Для создания станины был взят швеллер П-10.

Две верхние балки крепятся для надежности болтовым соединением и дополнительно в местах соединения провариваются сваркой.

Так же обязательно необходимо усилить конструкцию распорками из арматуры, уголка или же толстой металлической пластины. Затем нужно будет связать между собой нижнюю часть стана и сделать помимо поперечены еще и опорные стойки или ножки.

Домкрат можно купить в любом авто-магазине или же взять б/у по сходной цене. Грузоподъемность в каждом индивидуальном случае будет разная, в зависимости от размеров станины и металла из которого она изготовлена. Так, а теперь давайте разберем с вами как же все таки установить домкрат вниз выдвижной частью, ведь как все знают что так он работать не будет, потому как не будет поступать масло. дело в том что внутри домкрат заполнен маслом не до полна и есть воздух в верхней его части, а если перевернуть то он окажется в нижней и жидкость не будет поступать в трубку. Чтобы исправить эту проблему есть пара проверенных способов и вот первый из них. Надо перевернуть домкрат и в месте где находится заливная горловина вмонтировать переходник с гибким шлангом а на втором конце расширительный бочек с маслом, таким образом внутри всегда будет необходимый уровень жидкости для бесперебойной работы домкрата.
Второй способ более трудоемкий, а именно необходимо слить масло с домкрата и разобрать корпус, снять стакан и нарастить трубку, чтоб в перевернутом виде она закачивала масло. В верхней части домкрат крепится в неподвижном состояние при помощи болтов и гаек.

Подвижная балка будет иметь посадочное место под выдвижную часть домкрата.

Опорная балка тоже может передвигаться по направляющим, а именно регулироваться в зависимости от прессуемой детали за счет просверленных отверстий и штифтов (см схему)

Теперь возвратный механизм, здесь все довольно просто, нужны пружины которые закрепляются к верхней и нижней балке.

Вот такой замечательный и надежный пресс можно собрать у себя в гараже или же мастерской, просто и бюджетно.
Спасибо за внимание!
Домкрат и его особенности
Для изготовления гидравлического пресса чаще всего используют стаканный домкрат. Он имеет относительно небольшую стоимость и способен производить давление на уровне 20 тонн.
Есть два способа собрать гидравлический пресс на основе домкрата в своем гараже:
- Положение домкрата в основании механизма (прессование вверх)
- Положение домкрата вверху механизма (прессование вниз)
У домкратов есть параметр правильного положения. Эксплуатация некоторых домкратов исключает перевернутое положение. Поэтому перед тем, как начать работу, нужно убедиться в возможностях выбранного оборудования.
Перед началом работы над созданием гидравлического пресса настоятельно рекомендуется составить чертеж. Размеры всех деталей конструкции должны полностью совпадать, иначе при первом же использовании агрегата, конструкцию поведет в сторону.
Специалистами рекомендуется самостоятельно составить чертеж будущей системы, так как готовые варианты не всегда смогут удовлетворить владельца в плане габаритов, а также можно ошибиться с выбором типа домкрата. В таком случае будет упущена масса времени на подстройку системы к его параметрам.
Фото чертежей гидравлического пресса можно легко найти в интернете.
Пошаговая инструкция для самостоятельного создания гидравлического прессовочного оборудования.
Одним из основных действий, связанных с изготовлением гидравлического пресса своими руками является подготовка рамы. Она имеет название станина
и именно внутри нее будет находиться будущий пресс. Ее прочность должна иметь некоторый запас, так как давление внутри станины осуществляется в обе стороны (и вверх, и вниз), поэтому существует вероятность того, что раму разорвет.
Первое, что необходимо сделать: нарезать все основные детали конструкции согласно чертежным данным. Нужно просверлить отверстия в конструкции. Далее устанавливается специальная пластина с помощью сварки.
Следующим действием является сборка модели. Монтирование домкрата в конструкцию – последний этап изготовки конструкции.
Для конструирования более надежной системы рекомендуется использовать швеллер и монтажные углы, а для более устойчивой работы пресса можно добавить переносную опорную балку.
Таким образом, самостоятельное создание пресса – это увлекательное занятие, которое не только позволит сэкономить на покупке нового оборудования, но и подогнать такие параметры как габариты и мощность инструмента под собственные потребности.
Запрессовка сайлентблоков
Про то, как достать «сайленты», мы уже подробно рассказали, теперь появляется иная проблема — как запрессовать данную деталь? Эта процедура трудна тем, что требует определенных умений и способностей. Неправильно или же криво установленный сайлент или не будет ходить, или сломается раньше времени.
Первый метод
Как и в выпрессовывании, запрессовка в идеальном варианте должна выполняться с помощью тисков. Принцип несколько похож, но только с точностью наоборот. Прежде чем запрессовать деталь, нужно наждачной бумагой тщательно очистить посадочное гнездо от остатков и ржавчины предыдущего сайлента. Потом проушина щедро смазывается смазкой наподобие «Литол» либо же мыльным раствором. Устанавливается рычаг, сверху ставится деталь, после этого через особую оправку осуществляется давление пресса на проставку. Она и будет вдавливать деталь в посадочное место.
Второй метод
Когда у вас нет пресса, запрессовать деталь можно, используя при этом вышеупомянутый домкрат либо тиски. Принцип работы ничем не отличается от пресса. Устанавливается рычаг, втулка, а также проставка. После чего под действием силы тисков либо домкрата производится запрессовка детали в посадочное гнездо.
Третий метод
Пресс-съемник. В случае если сайлентблок маленький, «поставить его на свое место» можно с помощью такого же пресс-съемника, который употреблялся для выпрессовки детали из гнезда. Снова принцип одинаковый, лишь в качестве пресса употребляется толстая шайба и шпилька.
Четвертый метод
С использованием кувалды и грубой силы. Этот метод не самый лучший из всех существующих, так как он больше рассматривается чисто с теоретической стороны. Другими словами, он действительно позволяет запрессовать деталь, вот только очень сложно сказать, какими будут результаты и качество работы. Принцип достаточно простой: берем рычаг, на него ставим сайлент, после этого быстро и сильно бьем по нему.
После такого сильного воздействия он должен зайти в ухо рычага. Только главный недостаток метода в том, что спрогнозировать правильность движения данной детали не так просто, он может криво зайти в место посадки. Помимо прочего, может произойти «закусывание» резиновых составных частей и повреждение самого рычага либо же сайлентблока. Проще говоря, удар очень трудно держать под контролем, и часто после подобного рода «экспериментов» приходится обращаться к специалистам и заново все переделывать. Поэтому хорошенько подумайте о возможных последствиях до применения данного способа.
Пятый метод
Последний известный метод запрессовки сайлента — это использование веса авто. Принцип состоит в том, чтобы использовать вес своей машины в корыстных целях. Происходит все это так: под машину устанавливаете гидравлический либо винтообразный домкрат, снимаете колесо. Потом устанавливаете рычаг с сайлентом, который нужно запрессовать, под ступицу.
Дальше хорошенько все ровняем и начинаем медленно опускать домкрат. В таком случае рекомендуется, чтобы вам кто-нибудь помогал. Веса машины будет вполне достаточно, чтобы прочно вдавить деталь в место посадки. Недостаток этого метода в том, что он неудобен и в некоторой мере небезопасен, кроме того, не так просто держать под контролем правильность посадки детали в посадочное гнездо. Но, когда у вас нет иного варианта, метод вполне достоин внимания.
Каждый метод по-своему эффективен и интересен. Обдумайте для себя все плюсы и минусы каждого способа, чтобы наверняка определиться.
Материалы
Для работы понадобятся:
- Мотор с мощностью не менее 100 Ватт. Он должен делать не менее двадцати тысяч оборотов за одну минуту.
- Патрон с диаметром в промежутке от 0,5 до 1,5 миллиметров.
Все остальные действия осуществляются по тому же принципу, что и у других станков. Если возникают сомнения, лучше всего сверить свои действия с чертежами или посмотреть видео на ютубе.
Картинки сверлильного станка тоже помогут не сбиться с верного пути. Как сделать сверлильный станок своими руками расскажет статья, а все усилия будут награждены красивыми работами с просверленными элементами!

Отдельно следует отметить, что создание станка для сверления может стать хорошим способом для объяснения основных законов ребенку, в первую очередь мальчику.

В подростковом возрасте появляться желание делать что-либо своими руками и начинать разбираться в различных механизмах. Такой домашних станок для сверления позволит разобраться в его принципах работы, его составление собственными руками под присмотром взрослых позволит научиться разбираться в тонкостях конструкторского дела и разовьет техническое мышление, которое крайне сильно сможет пригодиться в будущем, при работе с машинами и другими техническими элементами, встречающимися в быту и других сферах жизни.
Также такие работы могут объединить семью и повлиять на выбор будущей профессии.
Создание станка для сверления своими руками — отличная возможность сэкономить деньги, проявить творческую фантазию и смекалку. Многие отмечают, что у различных технических элементов, созданных своими руками есть ряд преимуществ.

Они выигрывают у дешевых китайских аналогах которые часто и быстро ломаются не выдерживая нагрузок. При создании собственного сверла можно предположить, где случится поломка и исправить ее, ведь есть точное понимание о том как устроен механизм и в каком месте мог возникнуть какой-либо сбой.


Собственное сверло заточено под особенности именно вашей физиологии — под правшу или левшу, под рост и комплекцию. Все это облегчает работу и делает процесс приятным, вдохновляя на все новые переделки и свершения. А у хорошего хозяина работа всегда ладится отлично!

САЙТ ГАРАЖНИКА
Easy AdSense by Unreal

РОССИЯ, Нижний Новгород
САЙТ ГАРАЖНИКА — это сайт для тех, кто самостоятельно ремонтирует свой или чужой автомобиль в условиях гаража или небольшого, «нефирменного» сервиса. Или собирается заняться этим, но имеет мало представления о том, как это делать и с чего начать.
САЙТ ГАРАЖНИКА — это сайт для тех, кто занимается ремонтом автомобилей ради собственного удовольствия, а может быть, и ради заработка.
На САЙТЕ ГАРАЖНИКА будут размещаться материалы по кузовному ремонту, наиболее сложному и затратному виду ремонта автомобилей. Будут также помещаться практические материалы по наиболее интересным аспектам традиционного ремонта — двигателя, трансмиссии, электрики и т.д. Если традиционные виды ремонта представлены большим количеством литературы неплохого качества, то хорошая литература по кузовному ремонту — большая редкость.
Поиск по Интернету от Google на сайте Гаражника
Пользовательского поиска
САЙТ ГАРАЖНИКА восполнит дефицит — здесь вы найдёте практические материалы по качественному кузовному ремонту любой сложности, который делается в обыкновенном гараже. Кузовной ремонт — это не слишком просто и доступно, тем более, если вы работаете в обыкновенном гараже. Этому есть следующие объяснения:
Кузовной ремонт — это довольно затратное занятие. И вот почему.
- Если, например, для ремонта двигателя вам нужны один — два набора хороших торцовых головок, кое — какие съемники и спецключи, слесарный инструмент, то для ремонта кузовов нужно будет купить сварочный аппарат, компрессор, распылители, расходные материалы. Добавьте к этому инструменты для рихтовки, шлифования, а также ручной электро и пневмоинструмент.
- Прежде чем купить всё это, вам нужно будет определиться с выбором — что и от какого производителя покупать. Даже после того, как вы сделаете выбор и всё это постепенно закупите, останутся вопросы типа как правильно это подключить и как начать работать. Да что там оборудование. И к мастеру требования очень высоки — он должен быть немного художником, даже эстетом, если хотите. Результат его труда должен радовать родственников, друзей и девушек. И клиентов, если мастер работает за деньги…. При ином раскладе родственники будут расстроены, девушки разбегутся, а клиент может потребовать возврата авансов, угрожая физической расправой…
- Кузовной софт. Так принято называть расходные материалы для ремонта кузова. В него входят шпатлевки, жидкие шпатлевки, грунты первичные и вторичные, лаки MS и HS, эмали и базовые эмали, абразивные материалы, полировальные пасты. Добавим сюда герметики сварных швов, клеи для вклеивания стекол, консерванты внутренних полостей, антикоррозионные материалы для днища и колесных арок, и многое другое. Для новичка это всё безумно сложно.
- Специфика ремонта кузова кузова в гараже также довольно интересна. Как вы понимаете, гараж — это не фирменный сервис, где всё есть — и свет, и тепло, и площади, и тёплый сортир. Обычный гараж — это, за редким исключением, пыльное, тесное и полутёмное место, в котором полно всякого хлама и есть большие проблемы с подачей электроэнергии. Глядя на такой гараж, кажется, что единственное, что в нём можно делать — это тупо бухать….И ещё. Хорошо, если ремонт делается летом. А зимой, в холода? В гараже такой дубак, что мысль о какой-то там деятельности в нём кажется полным безумием. И всё-таки, несмотря ни на что, в гараже можно показать такое качество ремонта, рядом с которым некоторые »фирменные» сервисы могут отдыхать.
Так что, если вы полны решимости и не боитесь тяжёлого, вредного и монотонного труда и некоторых материальных затрат, то у вас есть шанс стать настоящим профи и даже начать зарабатывать деньги.
САЙТ ГАРАЖНИКА — это как раз то место, где вы получите информацию по любому вопросу, имеющему отношение к кузовному ремонту , и не только. Вы также получите информацию о том, как правильно обогреть гараж зимой, как улучшить электроснабжение, как работать в гараже, если там вообще нет электричества. Вы узнаете о том, как восстановить разбитый автомобиль, не пользуясь стапелем, как правильно пользоваться углекислотным полуавтоматом, распылителем HVLP, RP, LVLP, LVMP, HTE, GEO, как устранять дефекты окраски, как правильно и чем полировать, и много чего ещё. С наилучшими пожеланиями, Homa, администратор vgaraje.su.

Homa, администратор vgaraje.su и гаражник с большим стажем
Бить иди давить?
Прессовочные операции осуществляются в основном давлением и ударом. Ударная прессовка весьма экономична: от удара в металле заготовки возникает волна упругости, отчего металл лучше течет и меньше сопротивляется деформации. В практике любителей и мастеров-индивидуалов ударная прессовка широко применяется для холодной ковки металлов, особенно художественной. Ударные прессы выполняются чаще всего ударно-инерционными: энергия аккумулируется в механическом накопителе (маховике, падающем грузе). Затем накопитель вводится в зацепление с пуансоном пресса, который и бьет по заготовке. Ударно-инерционные прессы весьма компактны: такой пресс массой 1 т и размерами в плане ок. 1х1 м способен создать мгновенное усилие больше 1000 тс. Но ударная прессовка – одна из самых аварийно- и травмоопасных операций, поэтому далее будет рассмотрен только один вариант ударного пресса, пригодный для использования в домашней мастерской.
Основные характеристики пресса
Помимо выпрессовки и запрессовки автомобильных подшипников или сайлентблоков, собственный гидравлический пресс может выполнять широкий объем работ по ремонту, профилактике и обслуживанию автомобиля своими руками. Потому если вы предпочитаете ремонтировать автомобиль самостоятельно, рекомендуем сделать для этих целей гидравлический пресс. Вы можете использовать готовые чертежи пресса, либо адаптировать устройство под свои конкретные требования и поставленные задачи.
Прежде чем сделать гидравлический агрегат для замены сайлентблоков, остановитесь на основных характеристиках данного оборудования. При разработке устройства учитываются такие параметры:
- Размеры оборудования;
- Общая масса устройства;
- Показатели хода поршня пресса;
- Присутствие манометра (для создания контролируемого усилия или давления);
- Параметры станины гидравлического станка.
Есть множество вариантов исполнения конструкции пресса. Потому вам стоит подумать, какой гидравлический агрегат подойдет конкретно для вашего авто. У некоторых в гараже стоит компактная машинка весом около 1 тонны. У других же может быть многотонный грузовик. Сами понимаете, что простейший пресс с минимальными параметрами создаваемого усилия справиться с грузовиком не сможет.
Многие решают сделать устройство на основе простого бутылочного гидродомкрата со встроенным ручным насосом.
Вакуумный пресс
При изготовлении вакуумного пресса своими руками, стоит учитывать, что устройство состоит из термомодуля, стола и вакуумной камеры. При этом последний элемент часто имеет форму прямоугольника и делается из жесткого материла.
У такой конструкции есть некоторые особенности:
- аппарат имеет только ручное управление;
- для работы применяются доступные материалы;
- скорость работы не должна уступать заводским аналогам.
Вакуумная конструкция собирается из таких деталей:
- станина делается из рельсы для термомодуля и профилированной трубы. Для работы понадобится сварочный аппарат и электродрель;
- вакуумный стол делается из прижимной рамы, зажимов и ванны;
- также необходим и водокольцевой насос.
По аналогии производится и термовакуумный пресс.
Пресс подборщик
Такой аппарат, как пресс подборщик устанавливается как прицепной механизм для мотоблоков. Его используют на маленьких фермерских полях и на крупных сельскохозяйственных угодьях. После того, как зеленая масса срезается косилкой, данное устройство занимается ее обработкой. При этом формируются валики из стеблей, а после этого с помощью агрегата получаются прессованные тюки.
Вот достоинства от использования такого агрегата:
- сокращается время сушки, и уменьшаются потери сена;
- в несколько раз снижаются трудозатраты;
- повышается качество сена при хранении;
- возможна самостоятельная регулировка навесного устройства.

Самым распространенным вариантом является рулонный механизм. Пружинные зубья позволяют собирать массу травы. После этого каждая порция скручивается в тюки. Минитрактор при помощи такого пресса может загружать до 20 тонн соломы за 20 дней. Рулонные конструкции имеют небольшие габариты.
Валковый пресстюковой разновидности делают брикеты в форме прямоугольника. Трава в валках подхватывается зубьями и отправляется в отсек для прессования. Габариты могут регулироваться техникой. Тюки прочно упаковываются и обвязываются шпагатом. После этого блок выбрасывается на поле.

Можно сделать и самодельный вариант из ходового бруса и пиломатериалов. При этом делается большой короб из досок и используется горизонтальный способ для загрузки сена. В качестве пресса применяется реечный или винтовой домкрат. При помощи такого приспособления можно вязать тюки из соломы и прессовать их.
Настольный механический пресс
Настольный пресс может работать как на автоматической, так и на ручной тяге. Такое оборудование часто выполняется из прочной стали.
С помощью ручного пресса обрабатываются:
- полимеры и пластмассы;
- картон и поролон;
- всевозможные металлы;
- резина и кожа.

С помощью механического пресса производится выпрессовка подшипников и втулок, штамповка, а также высечки небольших изделий. Такой агрегат позволяет экономить время на изготовление деталей.
Устройство гидравлического ручного аппарата производит усилие с помощью штока гидроцилиндра. В этом элементе находится жидкость, которая сжимается под напором. Агрегат используется для сжатия, деформации и соединения деталей.
Дыропробивной вариант применяется для штамповки отверстий в листах разных материалов. Ручные механические аппараты необходимы для опрессовывания трубчатых гильз и кабеля.
Как сделать гидравлический пресс для макулатуры своими руками: чертежи
В последние годы объем различной бумажной продукции, которую использует человек в своей жизни и работе, постоянно увеличивается. Выбрасывать ненужные газеты, журналы и прочую макулатуру – не рационально, ведь используя обычный гидравлический пресс, из нее можно сделать брикеты для отопления дома.
Стоимость подобных станков для макулатуры на рынке достаточно высокая. Но каждый, кто умеет работать со сварочным аппаратом, имеет некоторые знания из гидравлики и располагает необходимыми материалами и чертежами, может сделать такое устройство своими руками.
Работа изготовленного собственноручно гидравлического пресса основана на передаче усилия при перекачке той или иной жидкости: масло перекачивается под давлением из цилиндра, воздействуя на поршень. В результате этого и происходит сильное воздействие на макулатуру, в результате чего она спрессовывается.
Любой фирменный или сделанный своими руками пресс состоит из таких основных частей:
- гидравлический насос или домкрат с гидроцилиндрами;
- станина и каркас;
- электродвигатель;
Перед тем как приступать к самостоятельному изготовлению гидравлического пресса, проводят требуемые расчеты, определяются с объемом цилиндров и камеры для загрузки макулатуры, создается схема будущего станка.
При отсутствии технического или инженерного образования сделать это своими руками сложно, поэтому лучше воспользоваться готовыми чертежами.
Разработка основания и опорной платформы
Сам процесс изготовления такого станка начинается с разработки пресс-формы: она представляет собой металлический короб прямоугольной формы, дно и крышка которого – съемные. Размеры такой формы определяют размеры брикетов макулатуры, которые можно будет делать с его помощью. Поэтому ее высоту и ширину каждый определяет своими руками.
Основание и опорная платформа для домкрата или гидронасоса должны быть максимально прочными, поскольку именно на них приходиться получаемое давление при работе пресса.
Чтобы сделать такие части гидравлического пресса, можно использовать обычный металлический профиль прямоугольного или квадратного сечения. Отрезав несколько деталей нужной длины, их прикладывают один к другому боковыми стенками, сваривая с обеих сторон швы сварочным аппаратом.
Из таких же элементов можно сделать и стойки упора, которые нужно приварить к основанию производимого гидравлического станка.
Следующий этап – разработка съемного упора, который будет перемещаться по стойкам, передавая при этом давление от домкрата на обрабатываемый материал. Для этого подойдут отрезки стальной полоски, длина которых должна быть немного меньшей, чем расстояние между стойками. Соединив сваркой такие отрезки, такая самостоятельно сделанная деталь фиксируется для перемещения по стойкам. Для этого используются две стальные пластины, длина которых равна длине упора вместе с шириной стоек. Проделав отверстия в этих пластинах и упоре, при помощи обычных гаек они соединяются между собой так, чтобы пластины располагались по обе стороны стоек.
Последний этап самостоятельной разработки гидравлического пресса – установка домкрата. Мощность такого станка будет зависеть только от мощности используемого домкрата. Для достижения высокой мощности работы аппарата потребуется использование электропривода. В результате этого можно будет прессовать различную макулатуру своими руками, используя получившиеся брикеты как эффективный вид топлива.
Готовый гидравлический пресс
Инструкция по созданию стационарной циркулярной пилы
Самым важным элементом стационарной циркулярной пилы является прочный стол с рабочей поверхностью. Лучше всего подойдет армированный лист с усилением из стального уголка. На рабочей поверхности располагаются следующие детали: отрезной диск, направляющие, толкающие и регулировочные элементы.
Изготовить циркулярную пилу из болгарки можно в следующем порядке:
- Монтаж каркаса и создание рабочей поверхности. Вырезать место для установки диска.
- Упоры для параллельной фиксации выполнены с помощью деревянных балок.
- Настройка шкалы для регулировки процесса резки.
- Установка зажимов для фиксации направляющих и заготовки.
- Закрепление болгарки снизу столешницы диском, направленным в прорезь.
Классическая конструкция из домкрата
Создать классический ручной пресс из домкрата довольно просто. Сначала из толстого швеллера изготавливается рама. Ее угловые части усиливаются стальными листами, которые повышают прочность всей конструкции.
На изготовленную раму устанавливают подвижный элемент, отвечающий за прессование изделий. Специалисты советуют установить на нем специальные ограничители, которые смогут лучше зафиксировать работающий домкрат.
Некоторые оснащают оборудование упорным штоком. Его изготавливают из подшипниковых валов. Упорный шток используют для повышения устойчивости прессовочной конструкции.
Гидравлический пресс: принцип действия и назначение
приводится в работу жидкостью
Устройство имеет два цилиндра или камеры. В одном, меньшем, жидкость доводят до состояния с высоким давлением, и передают по специальному каналу или трубопроводу в большую, рабочую камеру, в которой поступающая жидкость образует усилие на поршне, и передает на обрабатываемое изделие с помощью исполнительного инструмента. Важным условием эксплуатации пресса является установка упора, который не допускает перемещение заготовки или детали под действием рабочего поршня. В роли жидкости используются различные масла.
Как правило, в современных производственных гидравлических прессах расположение рабочей камеры обычно вертикальное, но может быть и горизонтальное. С учетом своего предназначения и вида обрабатываемых материалов это устройство развивает усилия от десятков до тысяч тонн давления. Пресс зачастую используется в металлообработке для ковки, штамповки, гибки и правки, выдавливания труб и профилей, а также при пакетировании, брикетировании, прессовании разных материалов, изготовлении древесно-стружечных, пластиковых, резиновых изделий и во многих иных сферах деятельности.








































